Kasteelheuvel of motte, 'Tombe van Pepijn'
Castle hill, 'Tomb of Pepin'
Romney hut with remnants of the Gertrude Chapel
New exhibition building over the remains of the Gertrude Chapel
New exhibition building over the remains of the Gertrude Chapel
New exhibition building over the remains of the Gertrude Chapel
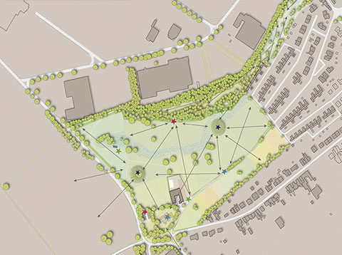
Vision Map cohesion and connecting
Various media to tell the story
Landen (Belgium) | Sinte Gitter site
The Saint Gitterdal is an idyllic place with centuries of history. Nowadays two medieval mounds, a stream, a church ruin and historic highway still refer to the rich history and the great names of the city and region. It was the birthplace of Saint Gertrude, the residence of Pepin of Landen and the Duke of Brabant founded in early 13th century the town New Landen.
In an Open Request by the Flemish Government Architect a study was written for the cultural tourism development of the Sinte Gitter site in Landen.
In cooperation with Catherine Visser (DaF-architects) and Ed Joosting Bunk (Landlab), Marc Kocken (M A R C) created a vision to transform the existing landscape in eight steps to a sustainable landscape in which unlocking and visualizing the history plays a central role. With our vision document and development scheme we achieved an honorable 2nd place.