poster | DLA+ landscape architects
poster | DLA+ landscape architects
poster | DLA+ landscape architects
design proposal | DLA + landscape architects
Cross section design proposal | DLA + landscape architects
3d visualization | DLA+ landscape architects
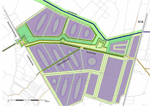
Groenlo | 16th century defense line
The municipalities Oost Gelre and Berkelland have strived for years to revive the 16th century defense line around Groenlo dating from the Eighty Year' War.
Commissioned by the the former municipalities Groenlo and Lichtenvoorde-Eibergen, Marc Kocken (with ADC Heritage) in cooperation with DLA + landscape architects conducted two studies providing a foundation for the development of the defense line and the fortifications of Groenlo. For various locations concrete suggestions for integration and visualization were developed.